下沙百联奥特莱斯广场(杭州百联奥特莱斯广场来啦)
下沙百联奥特莱斯广场(杭州百联奥特莱斯广场来啦)

PART 01
杭州百联.奥特莱斯广场方案设计出炉啦!
杭州百联.奥特莱斯广场项目位于杭州市余杭区超山五号路以西,昌达路以南,总用地面积为128228平方米,规划建设内容为奥特莱斯购物中心及集中商业综合体。方案容积率1.5,建筑密度50%,绿地率15%,建筑高度22米。

▲方案公示信息

▲百联奥特莱斯广场总平面图

▲百联奥特莱斯广场总经济技术指标

▲百联奥特莱斯广场鸟瞰图

▲百联奥特莱斯广场主入口效果图
PART 02
杭州百联.奥特莱斯广场位于超山东区域,总用地面积128228㎡(约192.3亩)。

▲杭州百联奥特莱斯广场位置
项目总建筑面积196610.47㎡,其中商业建筑122659.07㎡、办公建筑8509.9㎡、酒店11752.6㎡。
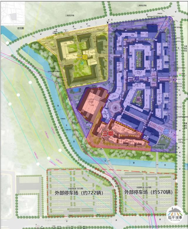
项目地块内共配置机动车停车数1967个,其中地上926辆、地下1041辆,在项目以南(剑塘港)与五洲路之间还设置了两块场外地面停车场地,共规划约1292个机动车停车位。
合计未来将满足超过3500辆机动车停放!
此外,项目还设有非机动车停车位,可停非机动车3088辆!

▲杭州百联奥特莱斯广场分期建设
项目共分三期建设:
一期主要为奥特莱斯购物中心;
二期为酒店、办公、及其它商业建筑;
三期主要为集中商业综合体(含影院等综合商业)。

▲杭州百联奥特莱斯广场酒店、办公、商业综合体建筑位置

▲杭州百联奥特莱斯广场一期指标

▲杭州百联奥特莱斯广场二期指标

▲杭州百联奥特莱斯广场三期指标
PART 03
2018年6月,余杭区政府与上海百联股份正式签订合作意向书,杭州首家百联.奥特莱斯将落户余杭!
2019年10月,上海百联集团股份有限公司联合杭州余杭旅游集团有限公司以总价3亿元拿下超山东地块,备受关注的杭州百联.奥特莱斯广场终于尘埃落定。
2019年12月,余杭区2019年四季度重大项目集中开工活动举行,杭州百联.奥特莱斯广场开工!

▲杭州百联奥特莱斯广场地下室土方开挖已经动工
杭州百联.奥特莱斯广场项目建成后,不仅将带来300多个一线名品折扣店,更将为超山区域带来当下流行的商业综合体里包括影院、超市、餐饮等众多商业形态!
期待,
杭州又一个大型商业中心,
早日在临平绽放!
以上,希望你喜欢
...END...
图片-撰文-编辑 | 威廉
公示信息来源 | 杭州.余杭政府门户网站
,
标签:
