什么样的房子美观又霸气?这三款好看的农村三层楼房设计图没错了
什么样的房子美观又霸气?这三款好看的农村三层楼房设计图没错了
在农村建房子,很多地方气势上绝对不能输,毕竟房子建得好的话,自己脸上才倍有面。那么建些什么样的户型才既美观又霸气呢?今天就给大家分享三套最好看的农村三层楼房设计图,外观稳重大气,给人的感觉非常不错,室内布局也可以,虽然不是特别大的互相,但是非常的有魅力。
款式一:农村三层别墅设计图,占地122平米,开间仅9米多
图纸介绍:这款三层别墅占地120平方左右,户型简约,虽然占地面积不大,但是为了能满足家庭成员的居住需求,依然在一层安排了两间卧室,同时还保证了客厅的宽敞可以说十分难得,不同于以往的一点就在于二层同样设置了客厅,这样两代人居住待客就可以不再相互打扰,户型符合大多数家庭建造的要求。
占地面积:9.5m*14.2m,122平方米左右;
建筑层高:三层;
建筑高度:14.13米(含屋顶);
设计功能:
一层户型:门厅、客厅、厨房、餐厅、卧室x2、卫生间;
二层户型:客厅、茶室、娱乐室、卧室x2、洗衣房、卫生间、阳台;
三层户型:客厅、卧室x2、洗衣房、卫生间、阳台、露台;




三层别墅设计图
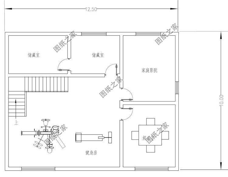
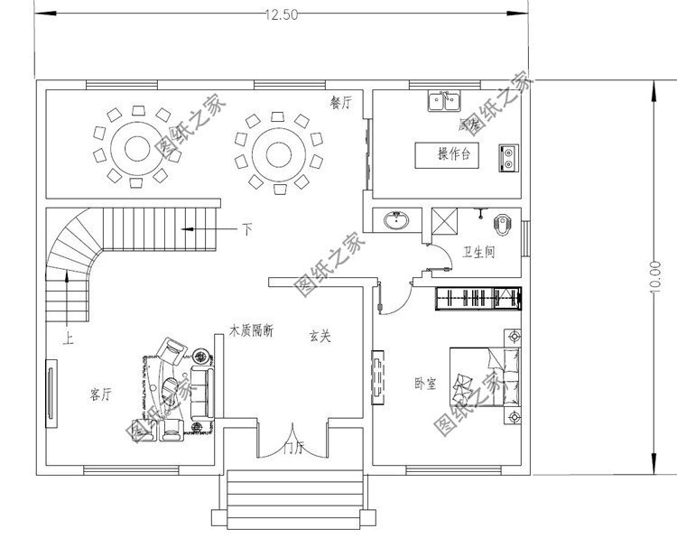
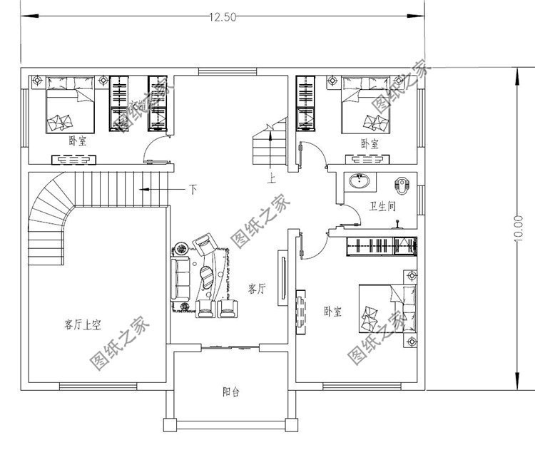
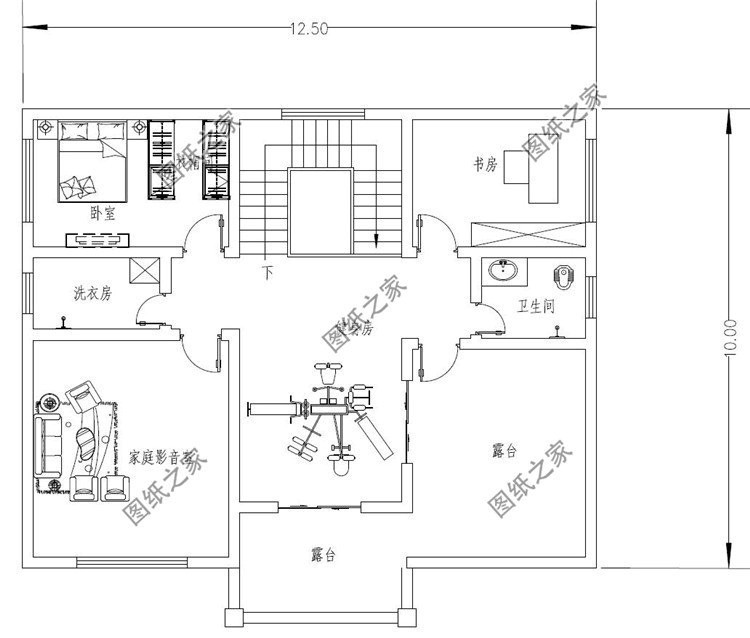
款式二:农村三层自建别墅设计图,现代风格,带地下室设计
图纸介绍:这款三层自建别墅占地120平方米,带地下室和旋转楼梯设计,现代风格,外观简洁大气。入户即是玄关,左拐角就是宽敞明亮的客厅,也可以作为会客室,一层的客厅上方做了挑空设计,加大了整体的视觉效果,保证屋内阳光充足与通风稳定,非常高端大气上档次。三楼设有洗衣房,是最大亮点,生活便利又有品质,喜欢健身,热爱生活的业主,要求单独设计的运动大厅,在保证良好的生活品质同时,后期也能改造成其他作用。超大阳光大露台保障了室内的通风与采光,同时还能够打造空中花园,白天可以赏花饮茶,晚上可以赏月。
占地面积:12.26m*10.96m,120.78平方米左右;
建筑层高:三层;
建筑高度:13.029米(含屋顶);
设计功能:
地下室户型图:储藏室x2、娱乐室、家庭影音、健身房;
一层户型:玄关、客厅、餐厅、厨房、卫生间、卧室;
二层户型:客厅挑空、客厅、卧室(带衣帽间)、卧室x2、卫生间、阳台;
三层户型:健身房、书房、家庭影音、洗衣房、卧室(带衣帽间)、书房、卫生间、露台x2;





三层别墅设计图
款式三:农村三层别墅设计图,占地161平米,外观十分气派
图纸介绍:这款三层别墅占地161平米,外观十分气派,大气美观适合自建!延续了中国传统的大屋檐,用了更简练的线条、宜居的色彩搭配,让人眼前一亮。客厅空间宽敞,与餐厅之间没有隔断自然过渡,上方作挑高设计,横纵向空间得到延伸,进门就能感觉到书香府邸的气派体面。二层为主要的居住空间,布置了三间卧室,主卧设置卫生间,保证了居住的私密性和舒适度。三层衣帽间则可以为女主人最爱的衣服和包包提供专属的小天地。大露台非常实用,方便家中晾晒。
占地面积:13.56m*12.26m,161.46平方米左右;
建筑层高:三层;
建筑高度:12.815米(含屋顶);
设计功能:
一层户型:门厅、客厅、厨房、餐厅、储藏室、卧室(带卫生间)、卧室、卫生间;
二层户型:客厅上空、起居室、书房、女儿房(带卫生间)、卧室(带卫生间)x2、露台;
三层户型:小客厅、娱乐区、卧室(衣帽间)、卧室x2、卫生间、阳台、露台;




三层别墅设计图
不知道这三款户型大家喜欢哪一款?欢迎下方评论留言。本文由图纸之家官网原创,欢迎关注,带你一起长知识!
标签:
